Ref.: 6450

Exclusiva planta baja de obra nueva para comprar en Ordino

Andorra - Ordino | Planta baja

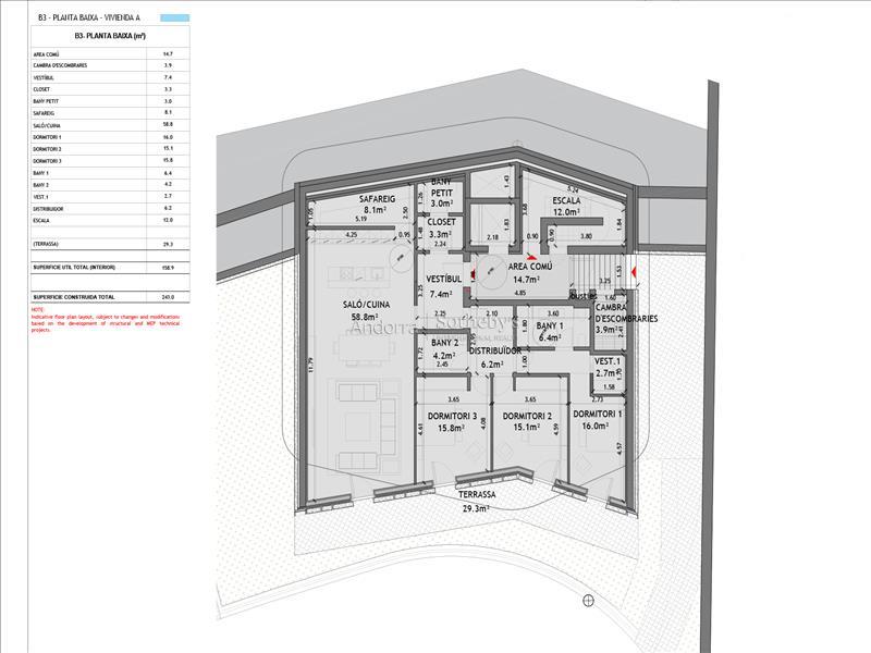
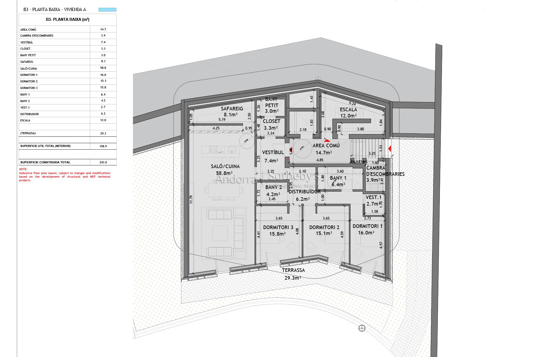
Superficie
234 m2
dormitorios
3
baños
3
Precio
2.300.000 €

Solicite más información sobre Exclusiva planta baja de obra nueva para comprar en Ordino

Ref.: 6450

| 6450

Planta baja exclusiva en venta en el encantador pueblo de Ordino, primer destino del Principado de Andorra designado como Reserva de la Biosfera. Esta sensacional propiedad forma parte de una promoción de nueva construcción que destaca por su privilegiada ubicación y por su diseño lujoso, ideado por el prestigioso estudio de arquitectura Rafael De la-Hoz Arquitectes. Se trata de un inmueble de nueva construcción de aproximadamente 234,50 m² construidos, que incluye una terraza orientada de manera óptima para aportar la máxima exposición posible a la luz natural, mientras se disfrutan de las magníficas vistas de Ordino y sus valles. La zona de día está distribuida en una gran cocina con isla central, equipada con las últimas tecnologías, y abierta a un acogedor salón-comedor con acceso a la terraza, un práctico vestidor, un aseo y una zona de lavandería. En la zona de noche, hay tres dormitorios dobles en suite con baño completo. Todas las habitaciones tienen salida a la terraza. La propiedad dispone de una plaza de parking para 3 coches. Los acabados son elegantes y de la más alta calidad, y el diseño de la propiedad combina elementos modernos, como las grandes vidrieras, con la arquitectura clásica andorrana en piedra y madera para integrarse de la mejor manera en el entorno y no perder la esencia del país.

Características

  • Zona comunitaria de ocio y recreo
  • Camáras de vigilancia
  • Ascensor adaptado silla de ruedas
  • Visibilidad
  • Armarios empotrados
  • Soleado
  • Terraza
  • Aire Acondicionado
  • Calefacción
  • Parking
  • Ascensor
  • Alarma
  • Vistas a la montaña
  • Transporte público cerca
  • Vistas ciudad
  • Zona verde
  • Agua caliente
  • Parking puerta automática
  • Parking cubierto

Calificacion Energetica A

Distancias

A menos de 5km

  • Sornàs 1,1 km
  • Ansalonga 1,6 km
  • Aldosa (L' ) (La Massana) 2,1 km
  • La Cortinada 2,5 km
  • La Massana 2,6 km
  • Arans 3,4 km
  • Escas 3,7 km
  • Anyós 5,0 km

A menos de 10km

  • Llorts 5,1 km
  • Xixerella 6,2 km
  • Arinsal 6,7 km
  • Serrat (El) 8,3 km
  • Pal 8,7 km
  • Molleres 9,4 km

A la capital

  • Escaldes-Engordany 8,1 km
  • Andorra la Vella 8,7 km

Siguientes pasos

Contacte con nuestro equipo de consultores inmobiliarios para saber más sobre esta exclusiva promoción.

Solicite más información sobre Exclusiva planta baja de obra nueva para comprar en Ordino

Ref.: 6450